Skip To Content

6 Carlingford Way

Greenville, SC 29615
  • $1,238,900
  • STATUS: Active
  • ON SITE: 173 Days
  • ID#: 1569500
$1,238,900
  • 5
    BEDS
  • N/A
    ACRES
  • 4
    BATHS
  • 1
    1/2 BATHS
  • 4600-4799
    SQFT
  • $264
    $/SQFT
Neighborhood:
Type:
Single-Family Home
Built:
2026
County:
Area:
020

School Information

Elementary School:
Middle School:
High School:
Offered by Brittany Fry of BHHS C Dan Joyner - Midtown

Description

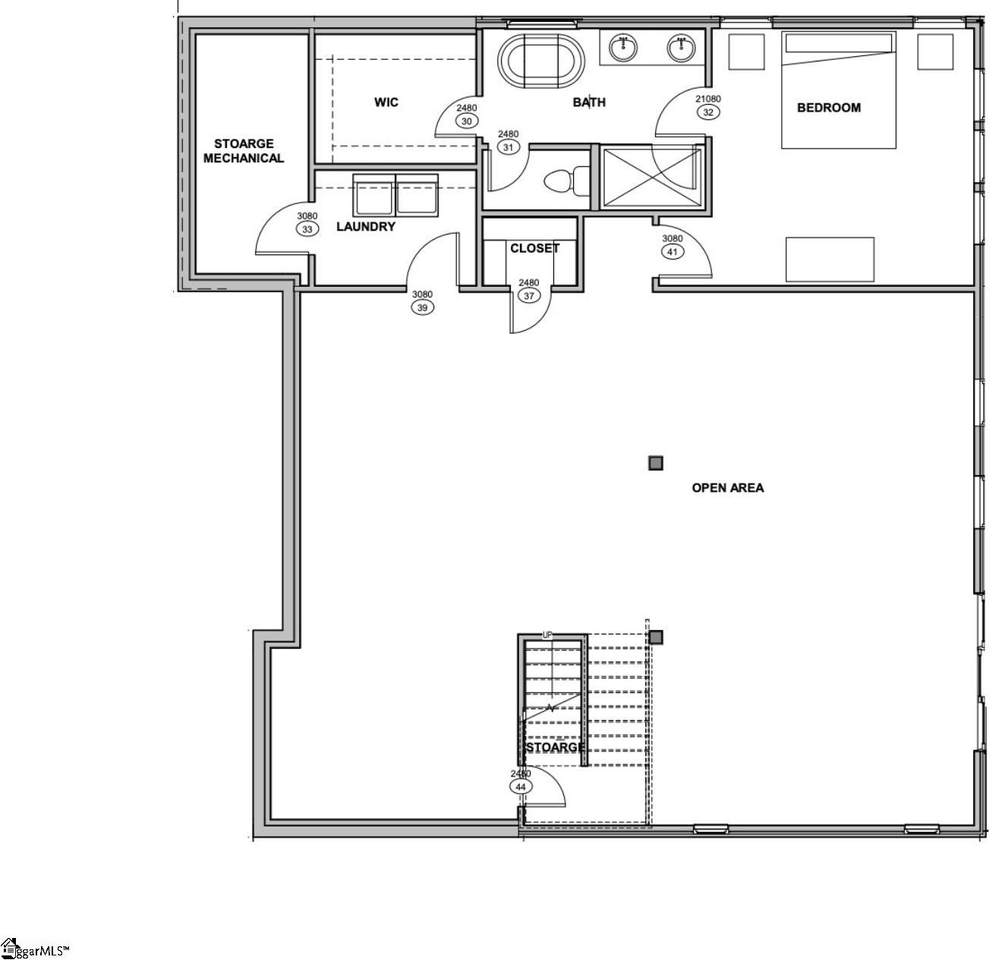
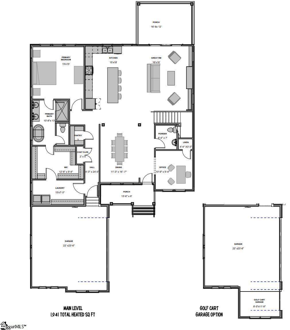
New Construction | Semi Custom | Pinestone Builders | Highly Sought After Location | Nestled in the heart of Greenville’s sought-after Eastside, ASTER on Butler Springs Road is where inspired living meets exceptional craftsmanship. This boutique semi-custom community offers the rare opportunity to own a thoughtfully designed home in a prime location known for its scenic charm, walkability, and connection to everyday conveniences, with lawn maintenance included! Surrounded by mature trees and minutes from shopping, parks, and top schools, Aster blends the best of both worlds, a peaceful residential feel with access to all the vibrancy Greenville has to offer. Whether it’s a stroll along the nearby Swamp Rabbit Trail, a short drive to downtown, or enjoying the local farmers market, life at Aster is rooted in balance, beauty, and belonging. Welcome to the beautifully designed Springfield Floorplan, offering a unique and functional courtyard layout that blends elegance, space, and flexibility. This thoughtfully crafted home features 5 bedrooms and 4 full bathrooms, including dual primary suites—one conveniently located on the main level, and a second in the fully finished basement, mirroring the main floor for multi-generational living or ultimate guest comfort. The heart of the home is the open-concept main living area, where a gorgeous fireplace serves as the perfect centerpiece for entertaining and cozy evenings with friends and family. The second level boasts a spacious recreational bonus room, ideal for a playroom, media space, home gym, or additional lounge area. From the smart layout to the upscale finishes, this home is designed to impress. Don’t miss your chance to own this exceptional and versatile property—perfect for modern living, entertaining, and everything in between! Each home at Aster is crafted with premium finishes and personalized touches, giving homeowners the flexibility to reflect their taste while enjoying the peace of mind that comes with quality construction. Build your dream home, today!

Monthly Payment Calculator



© 2026 Greater Greenville Association of Realtors Multiple Listing Service. All rights reserved. IDX information is provided exclusively for consumers' personal, non-commercial use and may not be used for any purpose other than to identify prospective properties consumers may be interested in purchasing. Information is deemed reliable but is not guaranteed accurate by the MLS or The Toates Team - Berkshire Hathaway HomeServices C. Dan Joyner. Data last updated 2026-03-09T00:01:13.66.
www.greenvillescrealestatesearch.com/homes/167959392
Print Image

6 Carlingford Way Greenville, SC 29615

  • Price: $1,238,900
  • Status: Active
  • On Site: 173 Days
  • ID#: 1569500
5
Beds
4
Baths
1
½ Baths
N/A
Acres
4600-4799
SQFT
$264
$/SQFT
2026
Built
Neighborhood:
Aster
County:
Greenville
Area:
020
Elementary School:
East North St
Middle School:
Greenville
High School:
Wade Hampton
Property Description
New Construction | Semi Custom | Pinestone Builders | Highly Sought After Location | Nestled in the heart of Greenville’s sought-after Eastside, ASTER on Butler Springs Road is where inspired living meets exceptional craftsmanship. This boutique semi-custom community offers the rare opportunity to own a thoughtfully designed home in a prime location known for its scenic charm, walkability, and connection to everyday conveniences, with lawn maintenance included! Surrounded by mature trees and minutes from shopping, parks, and top schools, Aster blends the best of both worlds, a peaceful residential feel with access to all the vibrancy Greenville has to offer. Whether it’s a stroll along the nearby Swamp Rabbit Trail, a short drive to downtown, or enjoying the local farmers market, life at Aster is rooted in balance, beauty, and belonging. Welcome to the beautifully designed Springfield Floorplan, offering a unique and functional courtyard layout that blends elegance, space, and flexibility. This thoughtfully crafted home features 5 bedrooms and 4 full bathrooms, including dual primary suites—one conveniently located on the main level, and a second in the fully finished basement, mirroring the main floor for multi-generational living or ultimate guest comfort. The heart of the home is the open-concept main living area, where a gorgeous fireplace serves as the perfect centerpiece for entertaining and cozy evenings with friends and family. The second level boasts a spacious recreational bonus room, ideal for a playroom, media space, home gym, or additional lounge area. From the smart layout to the upscale finishes, this home is designed to impress. Don’t miss your chance to own this exceptional and versatile property—perfect for modern living, entertaining, and everything in between! Each home at Aster is crafted with premium finishes and personalized touches, giving homeowners the flexibility to reflect their taste while enjoying the peace of mind that comes with quality construction. Build your dream home, today!
Exterior Features

Approx Lot Dimensions 50x108 Driveway Paved Concrete Exterior Features PatioPorch-FrontPorch-OtherTilt Out WindowsSprklr In Grnd-Full YardPorch-Covered Back Exterior Finish Hardboard Siding Foundation SlabBasement Garage Capacity 2 Garage Type Attached Garage Lot Description Level Parking Garage Door OpenerCourtyard EntryAttached Garage 2 CarsKey Pad EntryDriveway Parking Roof Architectural Storage Space AtticGarageBasement Stories 2+Basement Style Craftsman

Interior Features

Appliances Cook Top-GasDishwasherDisposalOven(s)-WallMicrowave-Built In Basement Full FinishedFull Bedroom2 Size 12x13 Bedroom3 Size 12x12 Bedroom4 Size 11x18 Bedroom5 Size 15x15 Bedrooms Main Level 1 Bonus Rec Rm Size 37x12 Cooling System Central ForcedElectric Den Size 10x5 Dining Room Size 11x16 Fireplace Gas Logs Fireplaces 1 Floors CarpetCeramic TileLuxury Vinyl Tile/Plank Full Baths On Main Lvl 1 Heating System Natural Gas Interior Features 2 Story FoyerCeiling 9ft+Ceiling FanCeiling Cathedral/VaultedCeiling SmoothCountertops GraniteSmoke DetectorWalk In ClosetSecond Living QuartersSplit Floor PlanCountertops – QuartzDual Primary BedroomsPantry – Walk InRadon System Kitchen Size 15x18 Laundry 1st FloorBasementWalk-in Living Room Size 16x18 Master Bedroom Size 15x15 Primary Bedroom Features Double SinkFull BathPrimary on Main LvlShower-SeparateTub-SeparateWalk-in Closet Specialty Room Bonus Room/Rec Room Water Heater GasTankless

Property Features

Additional Fees Cap Contr./Perpetual Fee Approx Age To Be Built Auction YN No Builders Name Pinestone Builders Community Amenities Lawn Maintenance Docs On File Warranty FurnishedRestric.Cov/By-LawsTermite Bond Documents With Offer Copy Earnest Money CheckPre-approve/Proof of FundSpecified Sales Contract Foreclosure YN No Garbage Pickup Public Hoa YN Yes HOAFee Includes Lawn MaintenanceStreet LightsBy-LawsRestrictive CovenantsYard Irrigation Lead Based Paint Disc Req No Res Property Disc Req No Second Living Quarters Basement Sewer Public Short Sale YN No Water Public

Listing information © 2026 Greater Greenville Association of Realtors MLS
Listing provided by Brittany Fry of BHHS C Dan Joyner - Midtown: 864-242-6650.


© 2026 Greater Greenville Association of Realtors Multiple Listing Service. All rights reserved. IDX information is provided exclusively for consumers' personal, non-commercial use and may not be used for any purpose other than to identify prospective properties consumers may be interested in purchasing. Information is deemed reliable but is not guaranteed accurate by the MLS or The Toates Team - Berkshire Hathaway HomeServices C. Dan Joyner. Data last updated 2026-03-09T00:01:13.66.
 
https://bt-photos.global.ssl.fastly.net/ggar/orig_boomver_1_1569500-2.jpg https://bt-photos.global.ssl.fastly.net/ggar/orig_boomver_1_1569500-2.jpg https://bt-photos.global.ssl.fastly.net/ggar/orig_boomver_1_1569500-2.jpg
Logo
The Toates Team - Berkshire Hathaway HomeServices C. Dan Joyner
1016 Woods Crossing Road
Greenville SC, 29607
Offered by Brittany Fry of BHHS C Dan Joyner - Midtown